©
Informativa sulla Privacy di Studiotecnicoalbani.itInformativa sui Cookie di Studiotecnicoalbani.it Informativa Legale di Studiotecnicoalbani.it

Via Roma - Piazza Vittorio Emanuele II - Piazza Cesare Battisti, Rieti
Strumento ricostruzione post sisma 2016




RELAZIONE TECNICA
La seguente relazione di calcolo riguarda le opere strutturali per il consolidamento necessario per rimuovere lo stato d’inagibilità dell’immobile, danneggiato a seguito della sequenza degli eventi sismici iniziati dalla data del 24 Agosto 2016.
La scheda AeDES riporta un esito di agibilità B determinato da un rischio strutturale basso con provvedimenti e non strutturale, geotecnico e esterno basso.
L’edificio ha una forma dalla geometria non regolare sia in pianta che in elevazione. Gli elementi strutturali verticali principali sono costituiti da murature in pietrame disordinato che presentano spessore variabile, da un massimo di 100 cm ad un minimo di 50 cm. I solai di piano sono o in legno o costituiti da putrelle metalliche e tavelloni o volte in muratura. La copertura è in legno con capriate, arcarecci, correntini e pianelle.
A seguito di dettagliate verifiche in sito sono stati riscontrati i seguenti danni: A tutti i livelli sono presenti lesioni non passanti sulla muratura con andamento verticale, orizzontale e diagonale.
In accordo con le normative di riferimento, lo scopo di un intervento locale è quello di accrescere la capacità di resistenza della struttura esistente alle azioni considerate, in particolar modo nei confronti di quelle sismiche, senza modificare lo schema strutturale preesistente, senza variare il comportamento delle altre parti e della struttura nel suo insieme e facendo in modo che gli interventi progettati non comportino una riduzione dei livelli di sicurezza preesistenti. Ai sensi del cap. 8.3 NTC2018 si dichiara che non è necessario adottare provvedimenti restrittivi dell’uso della costruzione e che gli interventi previsti nel progetto strutturale sono atti a ripristinare l’agibilità dell’immobile. Il progetto strutturale proposto si suddivide essenzialmente negli interventi descritti nel seguito










Revisione delle lesioni:
Verranno eseguiti rifacimenti di intonaci danneggiati in diverse aree dell’edificio come meglio
specificato negli elaborati grafici.
Rinforzo architravi:
Per ridurre la vulnerabilità del fabbricato il progetto prevede il rifacimento di architravi con putrelle accoppiate in acciaio HEA160. 5.2.
Interventi per la riduzione della vulnerabilità
Miglioramento delle connessioni murarie:
Per aumentare le connessioni delle murature portanti dell'edificio sono state effettuate le seguenti lavorazioni: è previsto il consolidamento degli angoli e dei martelli tramite perforazioni armate con utilizzo di barre di acciaio inossidabile ∅16
(di lunghezza variabile) ed iniezioni di miscela legante a base di calce.
Intervento di scuci‐cuci:
L’intervento prevede il rifacimento di una porzione limitata di muratura nel piano secondo con il metodo del scuci‐cuci.
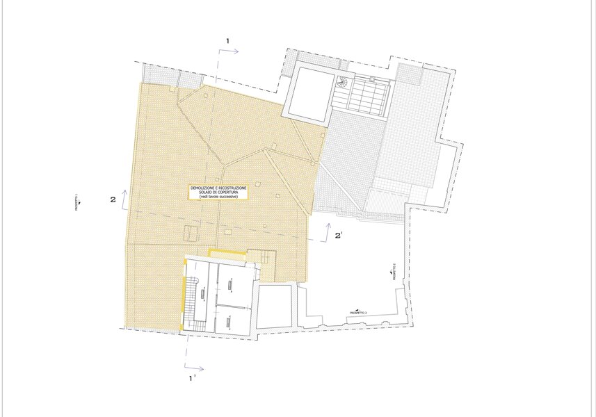
Demolizione e ricostruzione solaio di copertura:
L'intervento prevede la demolizione e ricostruzione delle falde con struttura portante in legno tramite il rifacimento delle stesse con struttura in legno di castagno composta da arcarecci 30x30cm e 20x20cm, correntini 8x8cm, pianelle 5cm, isolante e tegole; vengono inserite, in varie zone, anche delle reticolari metalliche composte da profili scatolari per ridurre le vulnerabilità esistenti, sia per geometria e carico che per qualità costruttiva dei materiali esistenti. Sul perimetro della muratura è prevista la messa in opera di un cordolo‐tirante in acciaio composto da un profilo UPN140 ancorato alla muratura sottostante con barre D16/60cm inghisate.
Consolidamento volta in muratura:
L’intervento prevede il rinforzo della volta mediante reticolato diffuso di diatoni artificiali realizzati con tessuto unidirezionale in fibra di acciaio galvanizzato ad altissima resistenza, iniettati con geomalta iperfluida a base di pura calce idraulica naturale. Si rimanda alle tavole di progetto.
Consolidamento solaio con connettori:
L’intervento prevede il consolidamento dei solai esistenti in legno, previa rimozione delle finiture e dei pesi non strutturali, e la realizzazione di un solaio misto in legno – cls alleggerito: la soletta dello spessore di 5cm viene resa collaborante tramite impiego di connettori tipo Tecnaria CTL MAXI 12/105 disposti sulle travi in legno esistenti. Il collegamento degli orizzontamenti alle strutture verticali portanti, che allo stato ante‐operam era inesistente in maniera diffusa, viene ora garantito dalle perforazioni armate perimetrali realizzate con barre ∅14/50cm. Per maggiori dettagli si rimanda agli elaborati grafici di progetto.
Cerchiature orizzontali intradosso solaio:
L’intervento prevede la messa in opera di una cerchiatura metallica orizzontale posta all’intradosso del solaio del piano primo e piano terzo, atta a garantire un’omogenea distribuzione delle forze sismiche ai maschi murari perimetrali, mantenendo comunque un comportamento non rigido. La cerchiatura è composta da piatti metallici 100x10mm e profili L‐150x10 collocati internamente all’edificio sul perimetro degli ambienti ed all’esterno, ancorati nella muratura tramite tasselli passanti e/o inghisati ∅16 o ∅30, in corrispondenza degli angoli. Per le dimensioni dei piatti metallici, dei profili, il numero e lunghezze dei tasselli ed ulteriori informazioni di dettaglio si rimanda alle tavole di progetto. Al secondo livello si prevede l’inserimento di catene ∅30 con capochiave esterni nelle zone est e ovest dell’edificio.
Intervento antisfondellamento solai esistenti:
Per prevenire e/o riparare il distacco all’intradosso di elementi di laterizio, si prevede per i solai la messa in sicurezza mediante l’applicazione di un pannello di rete metallica elettrosaldata galvanizzata o in acciaio inossidabile. Si rimanda alle tavole di progetto.
Intervento di cerchiature verticali:
L’intervento prevede la realizzazione di cerchiature metalliche, realizzate con profili HEA 240, per sostenere muri in falso e per garantire la continuità di alcuni maschi murari. Per maggiori dettagli si rimanda agli elaborati grafici di progetto.
Consolidamento e restauro controsoffitti “camorcanna":
Si prevede la messa in opera di fasce estradossali in CFRP a cavallo dell’orditura portante, come meglio descritto negli elaborati grafici.
Interventi per la riparazione del danno
PROGETTO ARCHITETTONICO

PALAZZO BLASETTI
si trova in una posizione centrale a Rieti, tra Piazza Vittorio Emanuele II e Piazza Cesare Battisti, vicino al Municipio, alla torre civica, al Palazzo di Governo e alla Cattedrale di Santa Maria Assunta. L'edificio attuale ha quattro livelli con appartamenti e negozi, mantenendo la sua destinazione originaria risalente al 1820.
Costruito nella prima metà del XVI secolo, ha subito modifiche nel XVIII e XIX secolo, come l'aggiunta di piani e decorazioni in stile bugnato. Negli anni '60-'70 del XIX secolo, il portale d'ingresso è stato adeguato per via di cambiamenti nel livello della piazza. L'edificio conserva ancora oggi l'aspetto simile a quello delle immagini degli anni '20-'30. Ha anche un cortile interno accessibile da Piazza Vittorio Emanuele II e include un corpo di fabbrica angolare con un design decorativo del XIX secolo.
PALAZZO SECENARI
situato nella stessa area del Palazzo Blasetti a Rieti, è un edificio risalente ai secoli XIII-XIV. Condivide il cortile interno con il Palazzo Blasetti e si affaccia su Via Roma, a pochi metri da Piazza Vittorio Emanuele II. L'edificio ha quattro livelli con negozi al piano terra e appartamenti ai piani superiori.
Costruito durante il XIV secolo con l'accorpamento di fabbricati precedenti, il Palazzo Secenari mostra tracce di architettura medievale, come le tre arcate a tutto sesto sulla facciata che originariamente erano porticate. Alcune modifiche sono state apportate nel corso dei secoli, come le arcate tamponate, le cornici in pietra e le finestre gotiche aggiunte nel XIX secolo o all'inizio del XX secolo.
All'interno dell'edificio, si possono ancora trovare elementi architettonici del XIV secolo, in particolare nella sala corrispondente alla bifora e alla finestra gotica. Il Palazzo Secenari ha subito varie trasformazioni nel corso dei secoli, ma conserva ancora dettagli storici significativi.

.png)
©